Subwoofer 10asw 10 DSP 10-60 10-80 10-150 20

Building Instructions Sub 10-150 and Sub 10-80

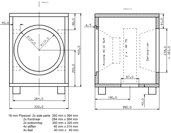
The assembly of the cabinet

The Sub 10-150 or Sub 10-80 consists of 6 external panels and 4 internal bracing panels which reduce the intrinsic resonance of the wooden cabinet. All 10 panels should be glued together and attached with screws (if required). Afterwards - or before - 3 openings for
- the bass driver,
- the amplifier module,
- the bass reflex port, underneath
should be cut.
Alcone Sub 10-150
Then the feet should be mounted. The distance between cabinet and floor tunes the loudspeaker, since this represents an extension of the bass reflex tube. Should the speaker be positioned close to a corner, the feet may be shortened by 5 mm.

Bass reflex tube tuning

Sub 10, bottom view To be able to tune the loudspeaker accurately to low frequencies, a long bass reflex tube is needed. This can be achieved by connecting the 2 supplied tubes HP 70. We suggest to fit the first tube from below; the second one be should attached (textile sticky tape, plastic glue,...) to the first tube by using the bass driver opening.

The assembled bass reflex tube should then be wrapped once with needle felt and secured with cable fasteners.

The left over needle felt should be placed around the bass reflex tube on the bottom panel of the cabinet . The remaining part is relatively easy: the amplifier module needs to be mounted and afterwards the bass driver since it is a lot easier to connect the bass driver when it's not mounted yet. The red / black cable's plug at the DT 150 (or DT 80) should be pressed together or simply cut off

The bass driver should be attached last.

The DT150' (or DT80) bass response is tuneable. We suggest, however, to try the neutral default setting first. For lowest bass and highest sound pressure level this seems to us the best setting.

Operation

The subwoofer needs to be connected to the amplifier (via cinch cable to the pre-out terminal or with speaker cable to the (satellite) speakers and the mains cable to the wall plug....

We wish many hours of enjoyable listening with this amazing subwoofer! - should there be any questions left, please call tel: +49-721-9703724.

 
the Sub 10 with 150 W amplifier module
the Sub 10 with 80 W amplifier module
Home