Visaton Subwoofer TL Sub 30

Der TL Sub 30 ist für die detailgetreue Wiedergabe von tiefsten Bässen im Subsonicbereich geeignet. Wenn man bereit und in der Lage ist, ca. einen halben Kubikmeter Wohnraum zu "opfern", vielleicht sogar einen Um- oder Neubau der Schrankwand plant, dann kommt der TL-SUB 30 für den absoluten Tiefstbass gerade wie gerufen. Allerdings muss vorab klar gesagt werden: Der Bass der untersten Oktave ist kein Discobass, der wie die Faust in den Magen schlägt, sondern "butterweich". Er macht sich eher als nicht ortbare Luftdruckschwankung im Raum bemerkbar und lässt die "Hosenbeine flattern". Die ultratiefen Bässe vermitteln einen faszinierenden Live-Eindruck - vorausgesetzt, sie sind tatsächlich auf der Tonspur der Software vorhanden.

TL Sub30

Der TL Sub 30 zeichnet sich durch folgende Eigenschaften aus:

  • enorme Tiefbassgewalt durch zwei Tieftonlautsprecher TIW 300
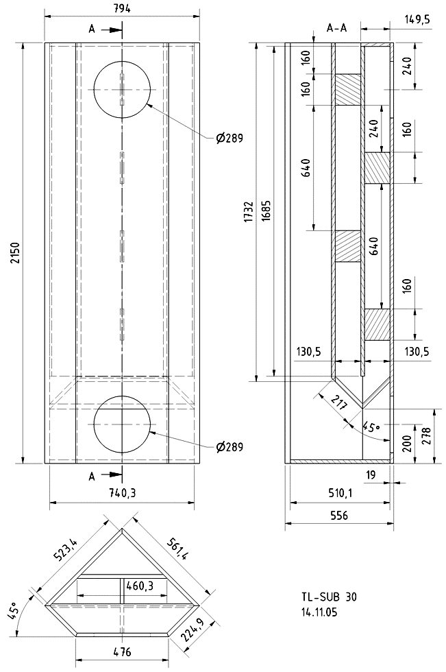
  • noch übersichtliche Größe (Höhe x Breite x Tiefe): 215 x 79,4 x 55,6 cm
  • mustergültiger Lieferumfang und Beschreibung von Visaton

Technische Daten:

  • Frequenzgang: ab 18 Hz (-10 dB, nach Visaton-Angabe)
  • der maximale Schalldruck der Box ist: 113 dB
Frequenzgang
    Bild: Frequenzgang und Impedanzkurve des TL Sub 30

Der Bausatz Visaton TL Sub30 enthält:

  • zwei Tieftöner TIW 300, 8 Ohm
  • ein Anschlussterminal ST 77 oder T105
  • 16x Inbus-Holzschrauben 5 x 30 mm
  • 4x Schrauben 3,5 x 25 mm
  • Kabel 2x 2,5 mm2
  • Beschreibung und Bauplan

zur Gehäusezeichnung

unser Bausatz: EUR 878,00 ohne MwSt: € 737.82 / $ 870.62

Der Bausatz TL Sub30 mit Verstärkermodul Hypex Fusion FA 501

Hypex Fusion FA501

Den TL Sub30 liefern wir nach Ihren Wünschen mit verschiedenen Verstärkern. Die Kombination mit dem Hypex Fusion FA501 (Bild links) erscheint uns sinnvoll, wenn ein solides Modul zum Einsatz kommen soll.

Der Bausatz enthält damit:

Anschlusstechnik:

alle angebotenen Module haben innen zwei Anschlüsse für den Lautsprecher und außen Hochpegeleingänge, die Sie an Ihren Lautsprecherausgang am Verstärker mit Ihren Boxen zusammen anschließen. Außerdem haben alle Module Cinch-Eingänge, wo Sie wahlweise Ihr Heimkinogerät oder Ihren Vorverstärkerausgang anschließen können.

zur Gehäusezeichnung

Best.-Nr. str-tlsub30-fa501,   Preis für einen Subwoofer-Bausatz (ohne Gehäuse):   EUR 1381,00 ohne MwSt: € 1160.50 / $ 1369.39

Der Bausatz TL Sub 30 mit anderen Verstärkermodulen

Gerne kombinieren wir Ihren TL Sub 30 auch mit anderen Verstärkermodulen. Fordern Sie unsere Angebot an!

  zur Visaton-Übersicht